Ribbon
  HOME RESUME ENGINEERING ARCHITECTURE ARTWORK PUBLICATIONS CONTACT
ARCHITECTURE

BIOPHILIA HYPOTHESIS

Year:
Produced for:
Project location:
2011
4B Design Studio project, University of Waterloo School of Architecture
Cambridge, ON, CAN
 
“The paradox is that, while the material advantages and luxuries produced by modern technology encompass us and touch all aspects of our lives, we have had the uneasy feeling of being uprooted, of loosing contact with nature, of getting soft.”
 
“The garden became an idealization of nature in which could be discovered something of the heart of nature, of its very elemental spirit. It was designed so that the beholder could relate himself to nature.”
 
- David Harris Engel
 
This interfaith chapel project attempts to get visitors back in touch with their instinctual love of nature. Through educational and spiritual experiences, learning, reflecting, applying and sharing, the project provides a renewed understanding of nature and promotes a respect for the planet so that environmentally responsible choices can be made every day. Architecturally, the building is simple and humble, using basic natural materials and standard construction. The project is not about the building but about the garden within its walls. The building is merely a functional frame into which the garden extends. In the end, the Biophilia Chapel is about restoring harmony between ourselves and the natural environment.
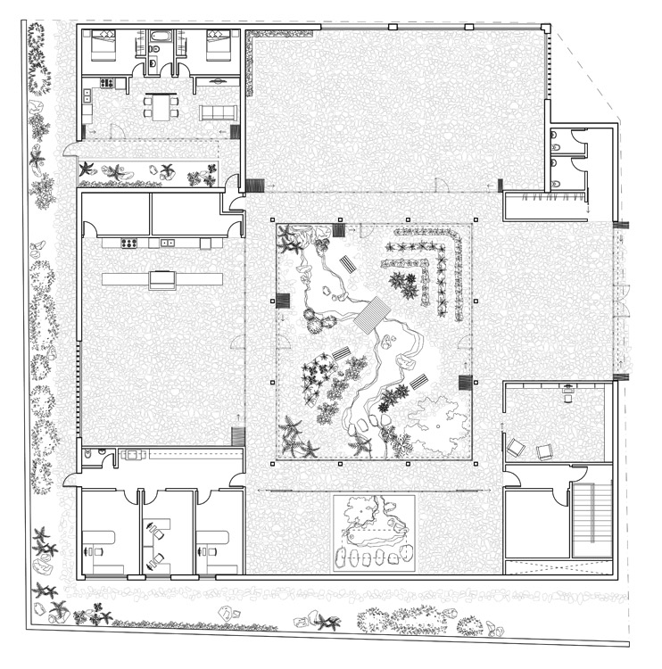
Floor plan of chapel showing the central courtyard garden.
Diagram showing the timber frame construction and exterior cladding of the chapel.
The entrance to the chapel frames a view of the interior courtyard garden.
Views of the different spaces in the chapel.
Diagram showing the lighting conditions produced in the chapel by different envelop configurations.
  TOP HOME CONTACT     © Matthieu Lemay 2015